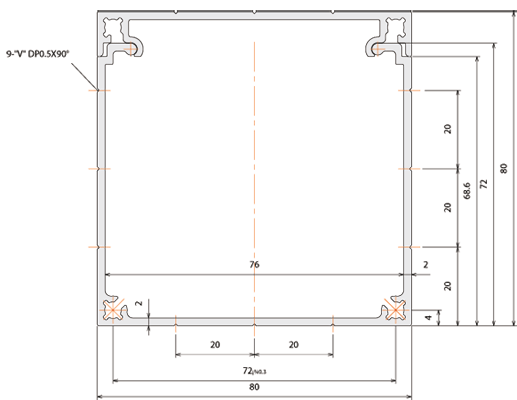
DAD8080-1
페이지 정보
작성자 최고관리자 작성일17-04-15 09:37 조회419회 댓글0건관련링크
| Meterial | A6N01S-T5 or A6063S-T5 |
| Surface Processing | Anodized |
| Weight | C:0.635㎏/m /B:1.316㎏/m |
| Section Area | C:234.3756㎟ /B:485.7578㎟ |
| Specification | 4,000㎜ / 6,000㎜ |
| Color | Silver, Black |
| Application | Duct Profile(Electric Cable,Air Tube,Etc) (전선, 에어배관용,닥트) |



