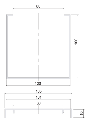
DAD100100
페이지 정보
작성자 최고관리자 작성일17-04-15 09:34 조회508회 댓글0건관련링크
| Meterial | A6N01S-T5 or A6063S-T5 |
| Surface Processing | Anodized |
| Weight | C:0.776㎏/m /B:1.691㎏/m |
| Section Area | C:286.5000㎟ /B:624.0000㎟ |
| Specification | 4,000㎜ / 6,000㎜ |
| Color | Silver, Black |
| Application | Duct Profile(Electric Cable,Air Tube,Etc) (전선, 에어배관용,닥트) |


